联系人:龙小姐
电话:13802985061
地址:广州市天河区体育西路111号建和中心大厦29F
我们常见的游泳池水循环方式有顺流式、逆流式。但对于多数初涉泳池行业的人来说,游泳池水循环方式可能还是比较陌生的字眼。今天小编就详细的给大家介绍游泳池水循环常见的几种方式及特点。

一、循环方式的选择
泳池最常用的循环方式有两种,一种是顺流式,一种是逆流式,由于两种方式具有不同的技术特点,因此在实际工程中,必须结合泳池的使用用途,作出正确的选择,切忌生搬硬套。
顺流式采用泳池两侧池壁进水,池底深端回水的循环方式,具体做法是:在两侧每条泳道线正下方池壁的正中央设置进水口,在池底最深端设置若干回水口,进水口的数量是泳道线数量的2倍,回水口数量等于泳道线的数量。顺流式实际上是模拟自然界河流的运动方式,实现处理过的水推动着使用过的水(即新水推旧水)进入水处理设备,从而避免了新水与旧水的混合。
采用顺流式的优点:①管线布置简单,不用设置平衡水箱等多余的设备,管理维护难度低,投资费用省;②不用额外地增加循环水量,水处理系统效率高,运行费用省;③溢水沟溢水不回用,池水表面的漂浮物可经池岸溢水沟排出泳池,从根本上杜绝了二次污染源。
采用顺流式的主要缺点:是由于进、回水口的数量较少,泳池整体水质(水温、余氯、浊度)不如逆流式均匀;

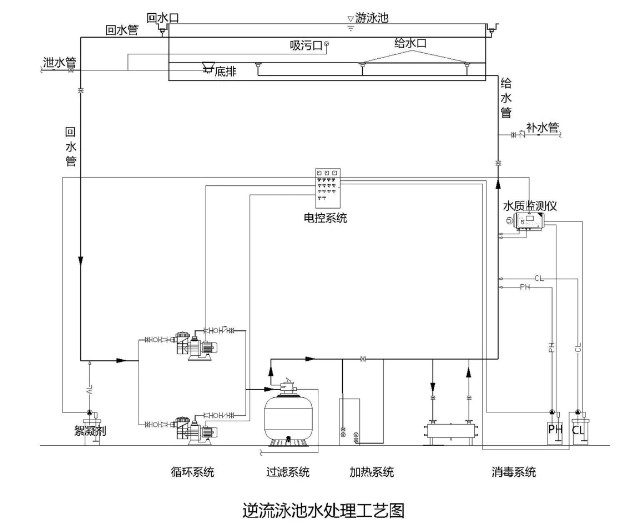
逆流式采用池底进水,池岸溢水回水的循环方式,具体做法是在池底每条泳道线的投影线上,每3米设置一个布水口,同时在泳池两侧设置溢流沟,它实际上是采取上移式布水方式,即从池底进水向水面推进,最后经池岸溢流槽返回水处理机房。
采用逆流式的优点:①泳池整体水质(水温、余氯、浊度)较顺流式更为均匀;② 池边水面的漂浮物可经池岸溢流槽收集反回水处理系统。
采用逆流式的缺点:①管线布置十分复杂,需设置平衡水箱等配套设备,管理维护工作量大,投资费用比顺流式大的多;②池边的水未经使用就经池岸溢流槽返回水处理机房(形成短流),而池中心的水必须经过几个循环周期,才能返回水处理机房,在游泳人数猛增,池水污染量增加的情况下,水处理效率远低于顺流式;③泳者经常把溢流槽当做痰槽,清理工作十分困难,对池水的二次污染十分严重;
综合顺流式和逆流式的优缺点,可以得出如下结论:①使用人数少、档次高的星级酒店、高档会所及奥林匹克比赛场馆,由于使用人数少,池水污染源少,同时使用者对泳池整体水质均匀度要求较高,因而宜采用逆流式循环,②游泳人数多、对外开放的社会性游泳馆,由于使用人数多,池水含污量较大,水处理系统的目标是必须在一个循环周期内迅速降低整体泳池的含污量,因而宜采用顺流式循环。

二、如何解决泳池中的尿素超标问题
对外开放的公众性游泳池最主要的污染是尿素、溶解酶、溶解蛋白等有机污染,这类情况在小学、中学游泳馆中尤为突出。然而常规压力式沙缸、沙罐过滤设备根本无法去除这些污染,因而必须每天向泳池中补充3%-5%的新水来稀释有机污染的浓度,在水资源日趋紧张的今天,这种办法必须禁止。
在水处理系统设计中,解决尿素超标问题有两个途径:一是在水处理系统中配置臭氧设备,生产O3强氧化剂,充分氧化分解池水中的有机污染;二是在保持池水余氯浓度的同时,提高池水中溶解氧的浓度,使池水中的次氯酸随时激发新生态氧[O],利用新生态氧[O]的强氧化性去氧化池水中的有机污染。